Load 3000~5000kg Automobile Elevator Solution
Dual operation panels design (Optional): Two operation boxes are installed in the car, allowing the driver to operate the elevator without stepping out of the vehicle.
Special-purpose circuit control and display system: Optimized for convenient use by drivers both inside and outside the car.
Front-and-rear opening elevator car: Supports front and rear door configurations for safer and more efficient vehicle entry and exit.
Our automobile elevator utilizes advanced technology to reduce the traction system burden caused by uneven force, effectively solving shaking and noise issues during operation.
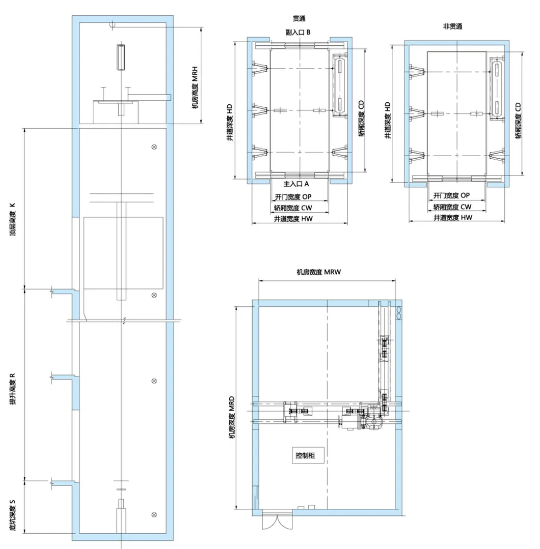
| Load (kg) | Door Type | Speed (m/s) | Car Dimension (mm) | Door-open Size (mm) | Hoistway Dimension (mm) | ||||||
|---|---|---|---|---|---|---|---|---|---|---|---|
| CW | CD | CH | OP | OPH | Min HW | Min HD | Min S | Min K | |||
| 3000 | One gate | 0.25 | 2500 | 5500 | 2200 | 2400 | 2100 | 4100 | 6100 | 1500 | 4500 |
| Two gate | 0.5 | ||||||||||
| 5000 | One gate | 0.25 | 2800 | 6500 | 2200 | 2400 | 2100 | 4500 | 7100 | 1600 | 4800 |
| Two gate | 0.5 | ||||||||||






With over 34 years of professional manufacturing experience since 1992, we specialize in designing and producing Opto-Electro-Mechanical products. Since 2012, we have expanded our global reach, exporting complete elevators and parts to over 80 countries worldwide.