Freight Automobile / Heavy Load Car Elevator

Customization: Available
After-sales Service: with
Warranty: 12 Months

Product Description

Basic Specifications
Model NO.
Car Elevator
Driving Type
AC Elevator
Capacity
3000~5000kg
Persons
11 - 19
Speed
<1.00m/s
Control Mode
Collective Selective Control
Position of Computer Room
Without Computer Room
Elevator Door
Sider Door
Door Knife
Single
Load
5000kg
Overhead Height
4800mm
Pit Depth
1600mm
Origin
China
Production Capacity
500set/ Year
Product Description

5000kg Capacity Freight Lift Automobile Car Elevator / Heavy Load Car Elevator

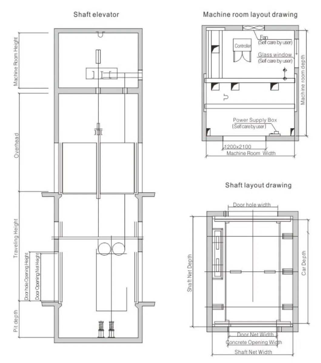
Load (kg) Speed (m/s) Exterior size (WxD mm) Net door opening (WxH mm) Shaft size (mm) Machine room size (mm) Door Open type
Width x Depth Overhead Pit Width x Depth x Height
3000 0.25/0.5 2700x5800 2400x2200 4100x6160 4800 1600 4100x6160x2500 Four panel center opening
5000 0.25 / 0.5 3500x7200 2600x2200 4750x7560 4750x7560x2500 Four panel center opening
Construction Layout Drawing
Car Elevator Construction Layout Drawing
Key Features
🛡️
Safe and Reliable

Ensures each passenger and vehicle's safe delivery to the destination with prioritized safety systems.

📐
Space Configurability

Optimized machine room layout to improve space availability and save construction costs.

🌱
Energy Saving

Adopts gearless permanent magnet synchronous machines to protect the environment and reduce power consumption.

High Performance

Equipped with a stable intelligent control system for the best lift dispatching solutions.

Car Elevator Features
Manufacturing & Logistics
Factory View 1 Factory View 2 Factory View 3
Delivery 1 Delivery 2 Delivery 3
Professional Manufacturing

Founded in 1992, we are a professional manufacturer with over 30 years of experience specializing in the design and production of Opto-Electro-Mechanical products. Since 2012, we have expanded our global reach, exporting high-quality elevators and elevator components to over 80 countries worldwide.

Production Excellence
Frequently Asked Questions
Are the elevator wire ropes durable?
Yes. The tensile strength of the wire rope is greater than the weight of the lift. With a safety factor involving more than four wire ropes, they are designed not to break simultaneously.
Is it dangerous if power fails suddenly during operation?
No. The elevator will automatically stop due to electrical and mechanical safety devices. Brakes will automatically engage in case of power failure.
Can passengers be hurt by doors closing suddenly?
The doors are equipped with anti-clamping switches. If someone touches the door, it will automatically restart or reopen without causing harm.
How does the elevator run?
Elevators are operated with a counterweight wire rope through a traction drive, moving up and down along the guide rails precisely.
Is the installation process complicated?
We apply an integrated structure in our designs, making the equipment precise and efficient, which allows for easier and more convenient commissioning.
Do your products have certifications?
Yes, our products are compliant with ISO9001, CCC, and CE certifications to ensure international quality standards.

Related Products