1 / 5
Passenger Elevators: Designed for high-rises, offering quiet, smooth rides, energy efficiency, and customizable cabin designs.
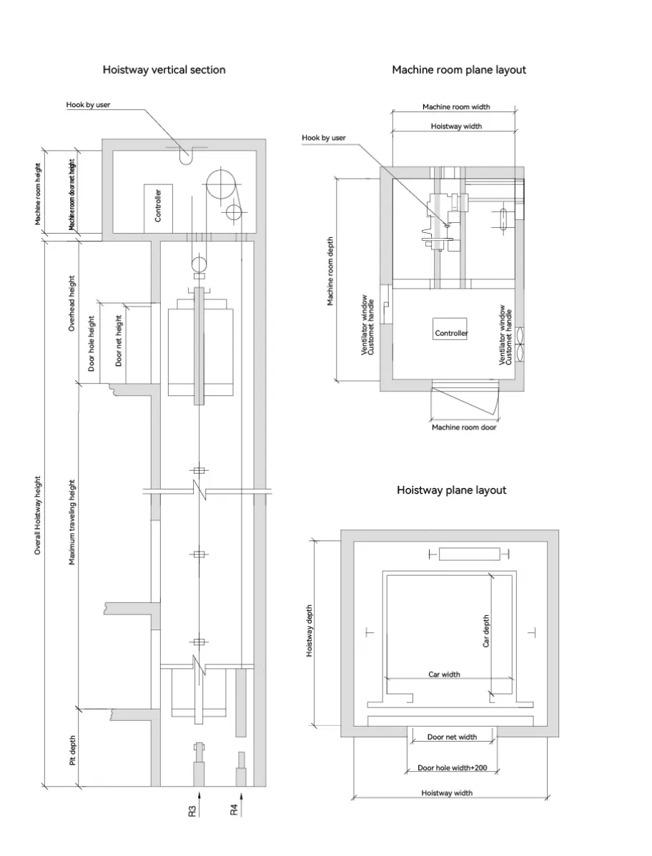
Small machine room passenger elevator construction sketch:
| Load (kg) | Speed (m/s) | Hoistway Size (mm) XxY | Machine Room Size (mm) | Car Dimension (mm) | Door Opening (mm) | Overhead Height (OH) | Pit Depth (PP) |
|---|---|---|---|---|---|---|---|
| 630 | 1.0 | 2000×1800 | 2000x3500 | 1400×1100 | 800 | 4500 | 1500 |
| 1.5 | 4600 | 1600 | |||||
| 1.75 | 4700 | 1700 | |||||
| 2.0 | 4900 | 2000 | |||||
| Note: Only for reference, final manufacture please follow contract. | |||||||
As a top Chinese elevator manufacturer with 30+ years of expertise, we are certified with ISO 9001 and CE. We export to 10+ countries, offering reliable elevators backed by innovation and strict quality control.


Why Choose Us?
Other Products