2-6 Floors Small Shaftless Residential Elevators House Villa Lift Passenger Home Elevator

Customization: Available
After-sales Service: with
Warranty: 12 Month

Product Description

Basic Information

Model NO.
V FUJI
Driving Type
AC Elevator
Capacity
500-1000kg
Persons
6 - 10
Speed
1.00 - 2.00m/s
Control Mode
Signal Control
Position
Without Computer Room
Elevator Door
Center Opening Door
Lifting Height
2000mm-12000mm
Feature
Safer, Smooth, Quiet, Durable
🏭

Product Overview

Residential Elevator Overview
VERTRA villa elevator transfers individuality and pragmatic properties with unique styles. A life with intelligent household appliances is not just about art & high-tech. It is back to life. It is creative. lt expresses a life attitude through creation.
VERTRA villa elevator realizes perfect connection between elevator and home furnishing, satisfying people's demand for life with superior quality, making your return to beauty of home, and enjoy good time of comfortable life.
Production Workshop

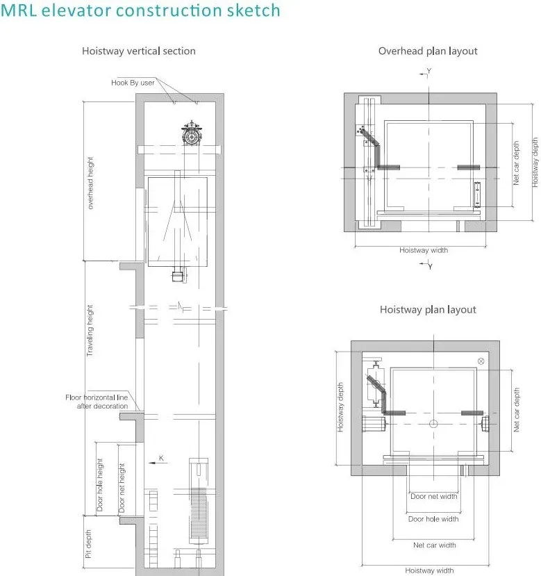
Technical Specifications

Persons Rated Capacity (kg) Rated Speed (m/s) Car Size (C.W x C.D) Door Size (Net) Shaft Size (H.W x H.D) Overhead (HR.H) Pit Depth
5 450 1.0 1100x1100 700x2100 1950x1750 4500 1500
8 630 1.0 / 1.5 / 1.75 1400x1100 800x2100 2250x1850 4500-4700 1500-1700
10 800 1.0 / 1.5 / 1.75 1450x1600 800x2100 2250x1950 4500-4700 1500-1700
13 1000 1.0 / 1.5 / 1.75 1450x1600 900x2100 2350x2150 4500-4700 1500-1700

Our Advantages

1
Safe and Reliable

VERTRA Elevator puts safety the first place, to ensure each passenger's safe delivery to destination.

2
Space Configurability

From the view of space saving, VERTRA Elevator improved the space availability efficiently.

3
Free Custom-made

Choose your favorite appearance from car finish, design, ceiling, and floor materials.

4
Low Noise System

Adopts low noise execution units to avoid traditional contactor noise for a quiet, green life.

Lift Components & Selection

Selection of the Cabin
Cabin Selection
Selection of the Floor
Floor Selection
🏛

Classic Cases

Classic Cases Display

Frequently Asked Questions

What is the load capacity of this home lift?
The elevator supports a rated capacity ranging from 500kg to 1000kg, suitable for 6 to 10 persons.
Does this elevator require a machine room?
No, this model is designed as a Machine Room-Less (MRL) elevator, which saves significant building space.
Can the cabin design be customized?
Yes, we offer free custom-made options for car finishes, ceiling designs, and floor materials to match your home interior.
What is the maximum lifting height available?
The lifting height is flexible and can range from 2000mm up to 12000mm depending on your requirements.
How does the elevator ensure a quiet environment?
It utilizes a low-noise execution system that replaces traditional contactors, ensuring a silent and smooth operation.
Is the elevator safe for residential use?
Absolutely. Safety is our first priority. The system is built with high-quality components and reliable control modes for safe passenger delivery.

Related Products